Your search results
Affitto

Appartamento in Affitto

Monza via Padre Reginaldo Giuliani 10

1.300 Mese

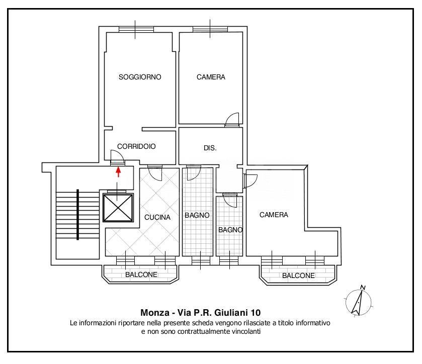
Nel cuore del centro storico di Monza, a pochi passi da Piazza Trento e Trieste, proponiamo un appartamento, parzialmente arredatio, situato al quarto piano di un elegante palazzo con servizio di portineria full time. L’abitazione è ampia e luminosa, con una disposizione degli spazi funzionale e accogliente. L’ingresso conduce a un soggiorno spazioso, perfetto per il relax o per accogliere ospiti, e a una cucina abitabile dotata di balcone.

La zona notte comprende due camere matrimoniali, una delle quali con balcone, e due bagni entrambi finestrati, ideali per garantire aerazione e comfort. L’appartamento gode di una doppia esposizione che assicura una buona luminosità durante tutta la giornata. Gli infissi sono nuovi e dotati di doppi vetri, a beneficio dell’isolamento termico e acustico. Completano la soluzione l’aria condizionata e il riscaldamento centralizzato a pavimento.

Un’opportunità ideale per chi desidera vivere in centro, in un contesto comodo e ben curato.

2
CARATTERISTICHE
LOCALITÀ

dicono dell'immobile